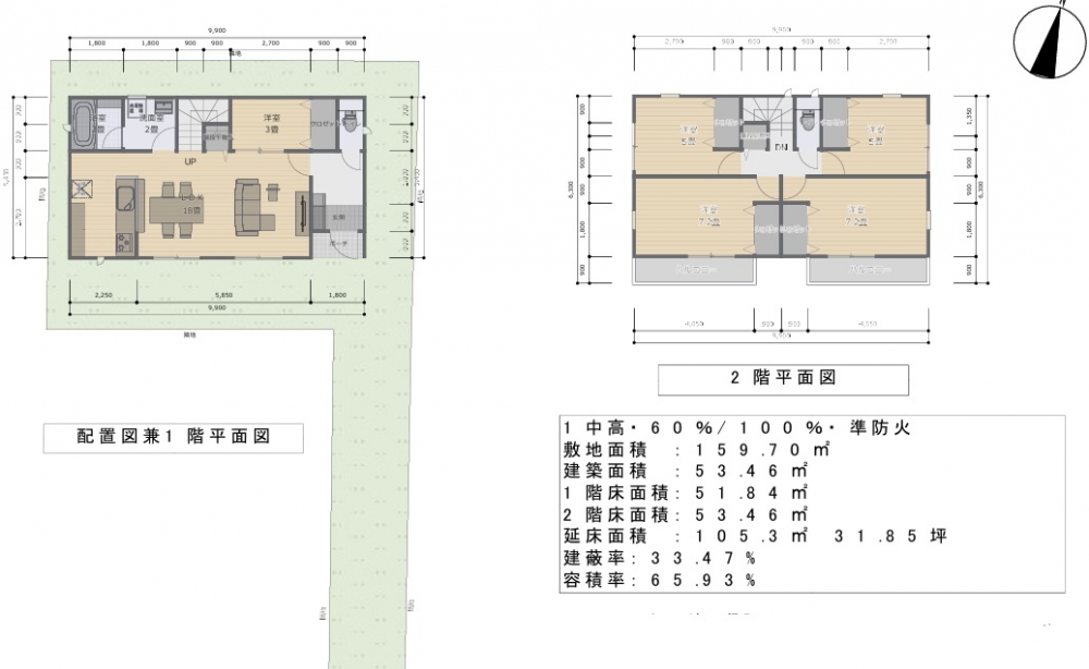
●所在地:練馬区東大泉1丁目 ●土地:地目宅地 ●面積159.70㎡ ●引き渡し 即
●法制限:第1種中高層住居専用地域・60% 200% 準防火地域 20m第2種高度地区 接道 南9m歩道付公道 路地状敷地
売地(更地)参考プランあり
- 土地159.70㎡
- 東大泉 売地 大泉学園・石神井公園駅利用可
- 価格
- 価格5980万円
南側9.0m公道 - 所在地/アクセス
- 西武池袋線「大泉学園」徒歩9分「石神井公園」徒歩18分
所在地:練馬区東大泉1丁目


大泉学園の物件のことなら当社にお任せください
建築条件なし 参考プランあります 長期優良住宅 延べ105㎡ 4LDK+S
2200万円税込みより
お好みの建築会社でおすきなこだわりの家を建築できます お気軽にご相談ください
建築条件なし 参考プランあります 長期優良住宅 延べ105㎡ 4LDK+S
2200万円税込みより
お好みの建築会社でおすきなこだわりの家を建築できます お気軽にご相談ください
●リヴィンオズ大泉・・9分
●区立大泉東小学校・・6分
●区立大泉中学校・・・14分
●学芸大附属小学校・・7分
●都立大泉高校・・・・4分
●区立大泉東小学校・・6分
●区立大泉中学校・・・14分
●学芸大附属小学校・・7分
●都立大泉高校・・・・4分
























